Marmande (47200) Terrain constructible 26 000 m² et 1600m² de bâtiment - MARMANDE
Réf : 7685
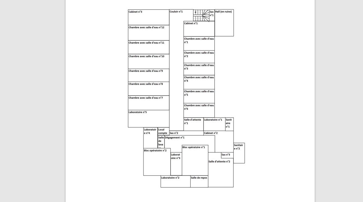
Marmande (47200) idéalement situé entre la rocade et le centre-ville de Marmande (47200). Nous vous proposons un ensemble immobilier comprenant: un terrain constructible de 26000 m², possibilité de faire 15 lots à l'hectare, plus un bâtiment de 1600 m², réhabilitable en résidence ou autres. Affaire rare, à ne pas manquer vous pouvez nous contacter au (05.53.64.50.00 ou 05.47.22.44.74) agence MAURIG IMMOBILIER de Marmande et Sainte Bazeille.
TRAD_SIROCCO_Caracteristique
Valeurs
Code postal
47200
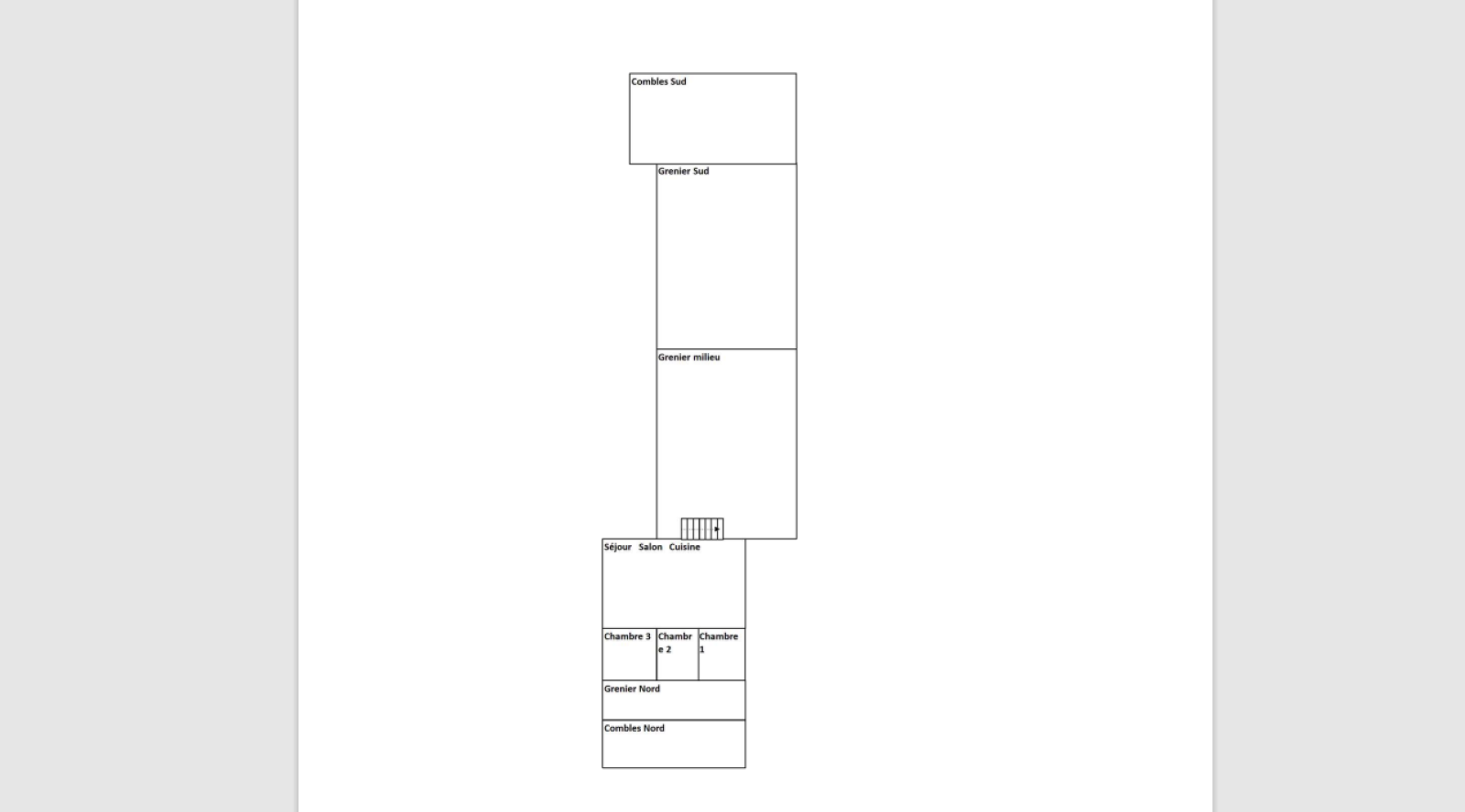
Surface habitable (m²)
1 330 m²
surface terrain
2,60 ha
Nombre de chambre(s)
23
Nombre de pièces
47
Nombre de niveaux
2
TRAD_SIROCCO_Caracteristique
Valeurs
Nb de salle de bains
23
TRAD_SIROCCO_Caracteristique
Valeurs
Les honoraires d'agence seront intégralement à la charge du vendeur
Détails des diagnostics énergétiques
DPE vierge
